
Cuisine - le sol ancien a été conservé

Cuisine en zelliges blancs

Salle de bain

Salle de bain
Cuisine - AVANT
Cuisine - AVANT
Salle de Bain - AVANT
Salle de Bain - AVANT

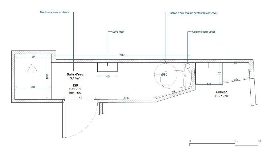
Dans un appartement ancien, la cuisine et la salle de bain d'eau n'étaient plus fonctionnelles. La machine à laver n'avait pas sa place. Nous avons donc modifié les espaces pour agrandir la cuisine et y loger la machine et le ballon d'eau chaude. Le charme de l'ancien a été conservé avec des matériaux simples et chaleureux (zelliges, travertin, laiton...). Prestation : Rénovation partielle, Aménagement, Dessin de mobilier sur mesure, Suivi de chantier